Gleichenfeier im ÖSW-Projekt Simply 11

© ÖSW

Das Österreichische Siedlungswerk feierte gemeinsam mit Generalunternehmer Bilfinger Berger und prominenten Gästen die Dachgleiche beim Projekt Simply 11.

Wien - Am Montag, den 14. April 2008, hat das Österreichische Siedlungswerk (ÖSW) beim Projekt Simply 11 in Wien-Simmering die Dachgleiche gefeiert. Auf Einladung von Generalunternehmer Bilfinger Berger waren zahlreiche Gäste - darunter Bezirksvorsteherin Renate Angerer, der Wiener Stadtrat Norbert Walter und Architektin Elke Delugan-Meissl - gekommen. ÖSW-Vorstand Michael Pech zeigte sich über die bisherige gute Zusammenarbeit sehr erfreut und bedankte sich bei allen Beteiligten für die geleistete Arbeit. Bis Frühjahr 2009 entstehen nach den Plänen des Architekturbüros Delugan-Meissl 80 geförderte Mietwohnungen mit Eigentumsoption.

Vielfältige Wohnungstypen
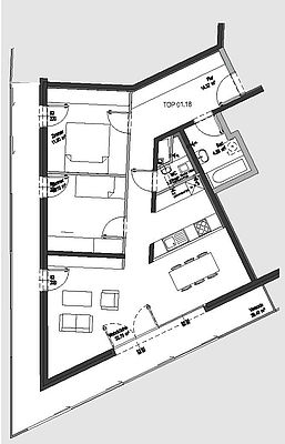
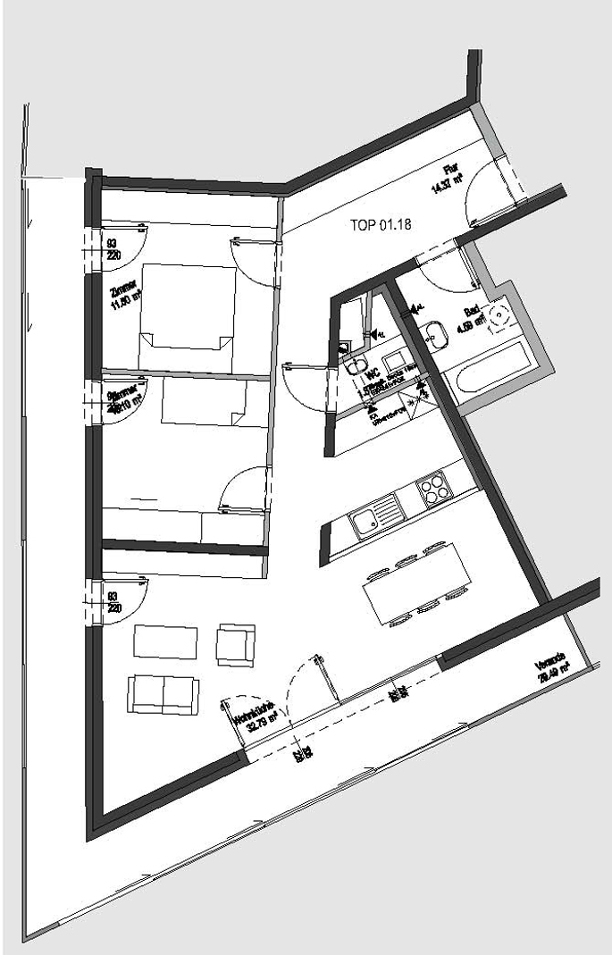
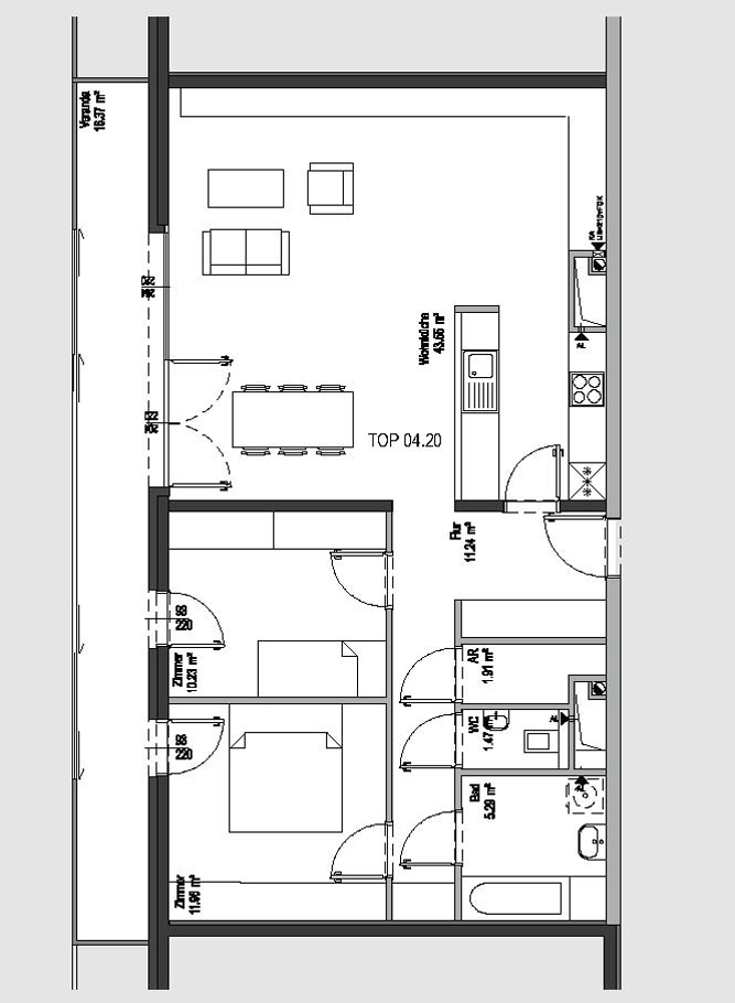
Diese Wohnanlage bietet eine Vielfalt an Wohnungstypen. Das Spektrum reicht von der kleineren Wohnung über Maisonetten bis zu Wohnungen mit geräumigen Terrassen. Grundelement ist ein durchgesteckter zweigeschossiger Wohnungstyp. Die Größen reichen von 45 bis 130 m². Zum einen wurde ein Maisonettetyp geplant, der im Eingangsbereich mit einer kleinen internen "Einliegerwohnung" ausgestattet ist. Je nach Familiensituation kann dieser Raum, der über eine eigene Nasszelle verfügt, als Jugendzimmer, Gästezimmer oder Arbeitsraum genutzt werden. Der andere Maisonettetyp weist im Eingangsbereich eine großzügige, natürlich belichtete Nische auf, die auch eine vielseitige Verwendung zulässt. Der Großteil der Wohneinheiten verfügt über Veranden mit großzügigen Schiebeelementen, die ein lichtdurchflutetes Wohnerlebnis ermöglichen. Die Wohnungen im Erdgeschoß sind mit südseitigen Mietergärten ausgestattet. So verfügt jede Wohnung über eine spezielle Freiraumlösung. Für ein angenehmes Raumklima sorgt der Holzboden, der in Wohnzimmer, Schlafzimmer und Wohnküche verlegt wird. Das Wohnprojekt wurde als Niedrigenergiehaus geplant. Über die Veranden wird in Kombination mit großzügigen Fensterflächen die passive Sonnenenergie optimal genutzt. Die kontrollierte Wohnraumlüftung sorgt für gute Luftqualität im Innenraum. In der Wohnanlage ermöglichen ein Gemeinschaftsraum, der begrünte Innenhof sowie ein Kleinkinderspielplatz Kontakt und Kommunikation unter den Bewohnern.

Infrastruktur
Die Anbindung an den Öffentlichen Verkehr ist über die beiden U-Bahn Stationen Gasometer und Zippererstraße besonders gut. Auch für den Individualverkehr ist die Lage des Projekts ideal - ganz in der Nähe befindet sich die A 23. In der hauseigenen Tiefgarage stehen PKW-Stellplätze zur Verfügung. Für eine gute Nahversorgung sorgt die nahe gelegene Shopping-Mall in den Gasometern. Dort befinden sich nicht nur zahlreiche Geschäfte, sondern auch ein vielfältiges kulinarisches Angebot und umfassende Unterhaltungseinrichtungen. Ebenso finden die Bewohner in der Umgebung Schulen und Kindergärten. Das nahe gelegene Schloss Neugebäude - das "Lustschloss" von Kaiser Maximilian II - bietet zahlreiche Veranstaltungen wie Märkte, Sommerkino, Konzerte und vieles andere mehr. Direkt vor der Haustüre wird der geplante Park außerdem zu Aktivitäten an der frischen Luft einladen. Die ÖSW AG steht an der Spitze der ÖSW-Konzerngruppe, die über rund 20 Beteiligungen verfügt und ca. 50.000 Einheiten verwaltet. Damit ist der Konzern der größte private gemeinnützige Bauträger in Österreich. Neben dem Wiener Markt ist das Österreichische Siedlungswerk schwerpunktmäßig in den Bundesländern Niederösterreich, Salzburg und Kärnten tätig.  

Kontakt für Rückfragen:
Mag. Helga Mayer
Österreichisches Siedlungswerk Gemeinnützige Wohnungsaktiengesellschaft
1080 Wien, Feldgasse 6-8
Tel.: (01) 401 57 DW 603, helga.mayer@oesw.at
www.oesw.at

Medien